Hiša - UMAG - 355.000 EUR
| Lokacija | UMAG, UMAG |
| Cena € | 355.000 |
| Površina | 92 m2 |
| Število sob | 5 |
| Površina parcele | 250 m2 |
| Število kopalnic | 2 |
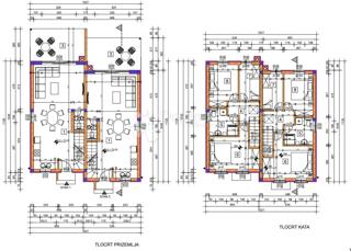
Moderna dvojna hiša z bazenom blizu morja – okolica Umaga Naprodaj je moderna dvojna hiša s površino 92 m², ki stoji na 250 m² veliki parceli v mirni okolici Umaga, le 2 km od morja. Hiša obsega dve etaži – pritličje in nadstropje – ter je idealna za mirno družinsko življenje ali kot naložba za oddajanje turistom. V pritličju je prostorna dnevna soba s kaminom, odprta kuhinja in jedilnica z izhodom na teraso in vrt z bazenom. V pritličju sta tudi tehnični prostor in stranišče za goste. V nadstropju so tri moderne spalnice in ena kopalnica. Urejena in ograjena parcela ponuja popolno zasebnost, bazen velikosti 6 x 3 m in prostor za sončenje – idealno za sprostitev poleti. Hiša ima talno ogrevanje preko toplotne črpalke in klimatske naprave za hlajenje, stavbno pohištvo je PVC. Predviden zaključek gradnje je sredi leta 2026. Nepremičnina predstavlja popolno kombinacijo sodobnega dizajna, funkcionalnosti in odlične lokacije blizu morja.
ID: 1213324