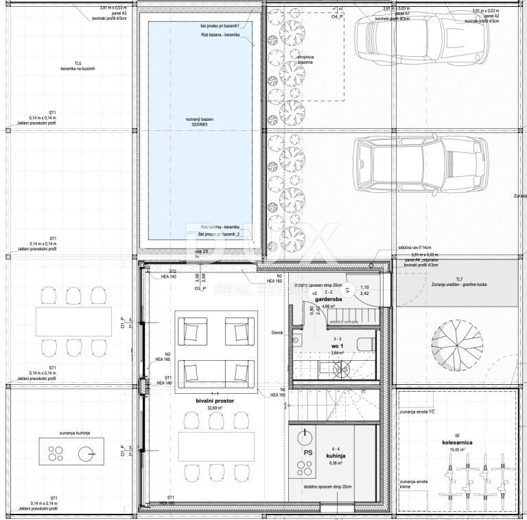
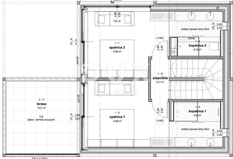
Hiša v mestu UMAG cena 759.000 EUR s površino 126 m2