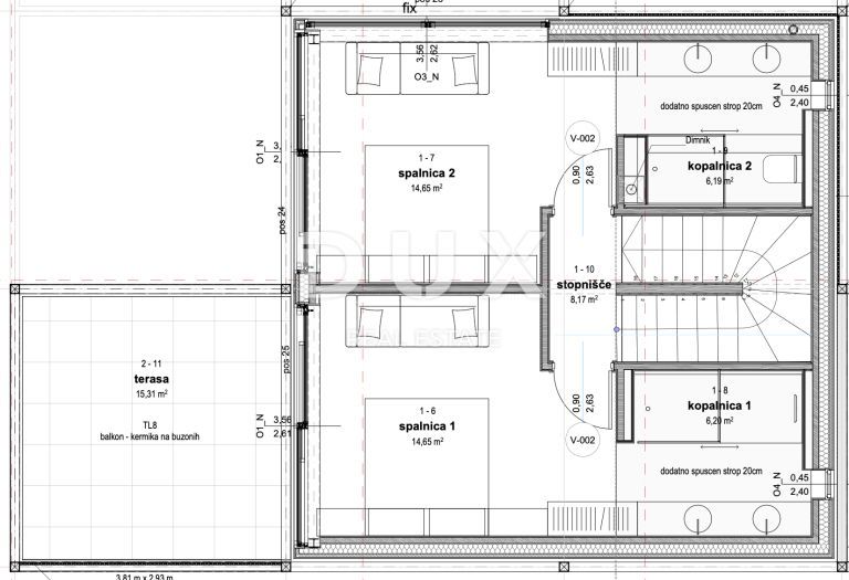
Hiša v mestu UMAG cena 759.000 EUR s površino 126 m2

ISTRA, UMAG - Okolju prijazna vila s pogledom na morje