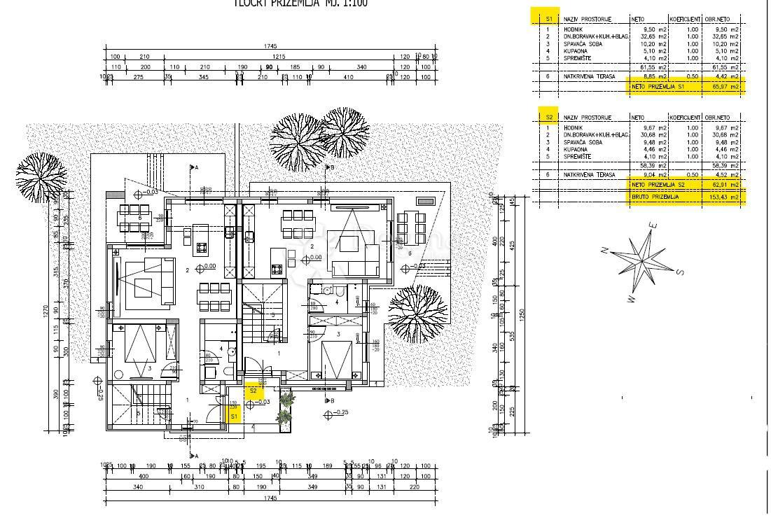
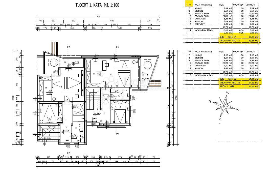
Hiša v mestu UMAG cena 470.000 EUR s površino 142 m2