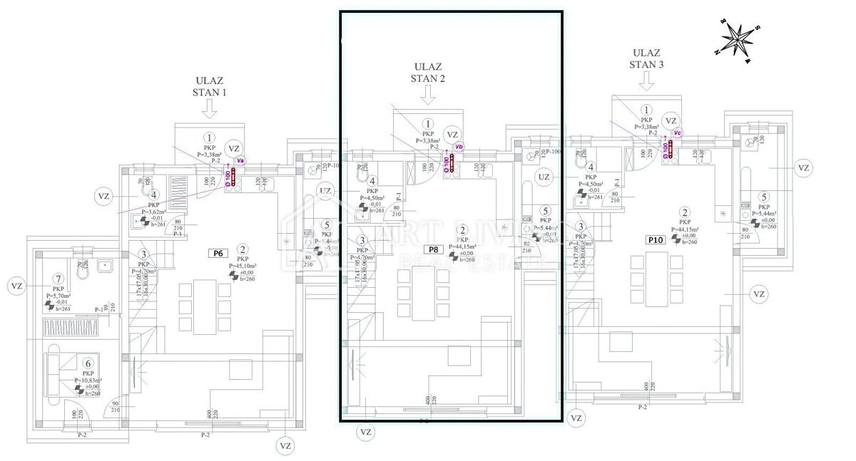
Hiša v mestu UMAG cena 452.000 EUR s površino 112 m2

Istra, Umag, okolica – NOVOGRADNJA – Čudovita vrstna hiša na atraktivni lokaciji