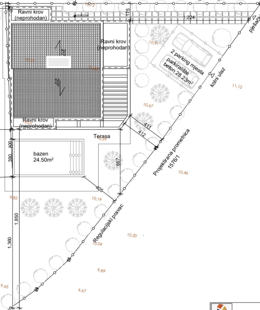
Hiša v mestu UMAG cena 1.646.460 EUR s površino 233 m2

UMAG, VILA SAMO 150 METROV OD PLAŽE IN MORJA