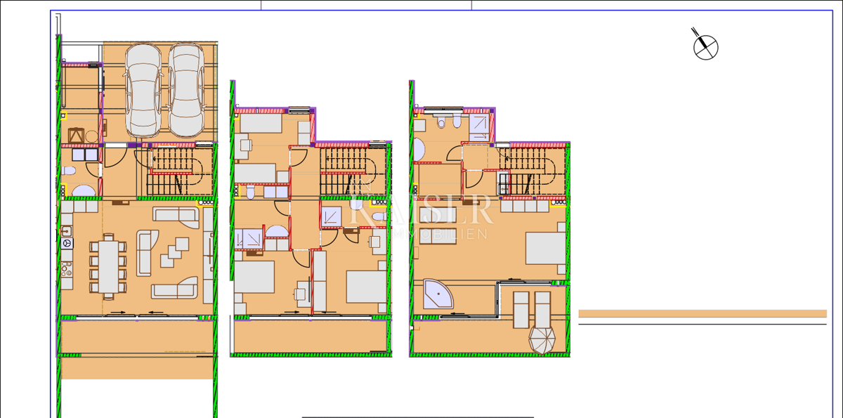
Hiša v mestu SAVUDRIJA cena 1.075.410 EUR s površino 231 m2

Hiša Savudrija, Umag, 231m2