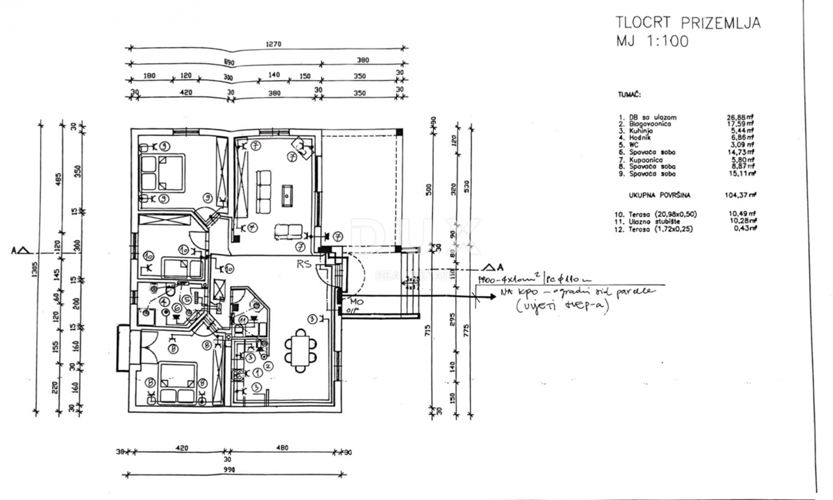
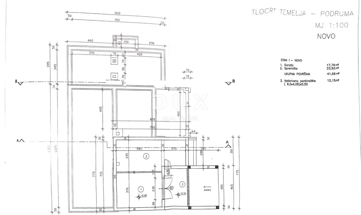
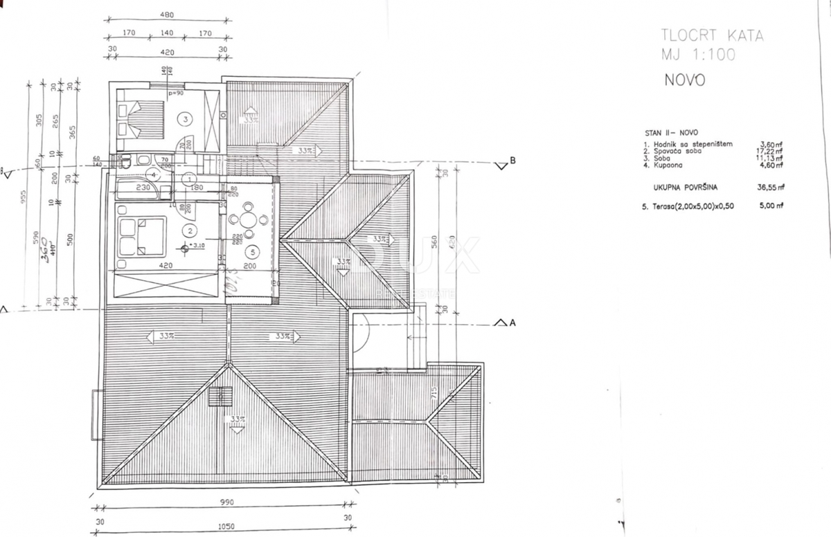
Hiša v mestu MURINE cena 600.000 EUR s površino 145 m2

ISTRA, UMAG - Samostojna hiša z dvema ločenima stanovanjema, garažo in vrtom